物件詳細

新築一戸建て
大野台4丁目新築戸建 3
神奈川県相模原市南区大野台4丁目
新築一戸建て(新築(建築中))
交通 横浜線/古淵 徒歩23分 土地面積 88.98m2
販売価格 4,185万円
< ローンシミュレーション >
建物面積 建物面積:85.69m2
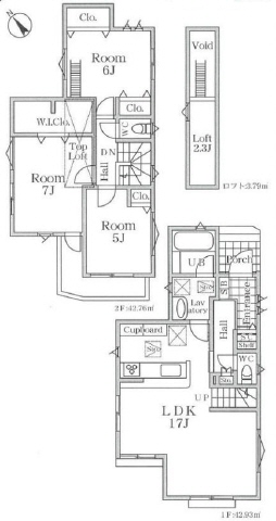
間取り 3LDK 完成予定 2026/06
  • S-ICL付
    S-ICL付
  • イメージパース 風景 車等は含まれません
    イメージパース 風景 車等は含まれません
  • 3号棟
その他交通 - 販売戸数/総戸数 --戸/--戸
建物構造 木造 建ぺい率/容積率 50%/100%
最多価格帯 私道面積 (無)
敷地権利 所有権 国土法 -
地代/借地期間 -- 用途地域 市街化区域 1種低層
権利金/保証金 -- 地目 宅地
その他費用 接道状況 南東側道路(公道/幅員5m)に5m接道
間取り詳細 洋室5・洋室6・洋室7・LDK17・ロフト2.3 地勢 -
駐車場 付(1台) 建築確認番号 4406
引渡時期 予定:2026/06下旬 施工会社 --
周辺環境 (教育施設)大野台小学校 約720m、(教育施設)大野台中学校 約880m、(その他)大野台動物病院 約1,200m
特記事項 17JLDK リビングイン階段です。カップボードやロフトなど設備も充実していますよ。ZEH水準適合住宅
設備・条件 電気、ガス(都市)、水道(公営)、給湯、食器洗浄乾燥機、浄水器、システムキッチン、対面キッチン、カウンターキッチン、ガスコンロ(付)、グリル、バス、トイレ(2箇所)、洗面台、バス・トイレ別、ユニットバス、追い炊き式、浴室換気乾燥機、洗面所独立、脱衣所、シャンプードレッサー、洗面台、暖房便座、室内洗濯機置場、排水(下水)、フローリング、収納、床下収納、クローゼット、ウォークインクローゼット、物入、下駄箱、ロフト、TV付インターフォン、駐車台数、手摺り付き
ペット可、子供可
備考 採光向き:南西 剛床仕様、浄水機能付ハンドシャワー水栓、食器洗乾燥機、キッチン背面カップボード、樹脂窓Low-eペアガラス+網戸付 物件登録日・更新日 2026年05月02日
売主 次回更新予定日 2026年05月16日
お問い合わせ番号 大野台4-03
販売スケジュール --
取引態様 仲介
お問い合わせ
株式会社輪が家
神奈川県相模原市南区古淵2丁目4-2101
神奈川県知事免許(4)第27846号
TEL 042-707-7440
フリーダイヤル
FAX 042-707-7442
物件へのお問い合わせ
無料相談
最適な物件を探したい方は
新築一戸建てのプロ『戸建マイスター:松沢博』
に無料相談。
新築一戸建てのプロ マイスターに相談する

ページの先頭へ