物件詳細

新築一戸建て
相模原市中央区小山1丁目新築戸建
神奈川県相模原市中央区小山1丁目
新築一戸建て(新築(建築中))
交通 横浜線/相模原 徒歩14分 土地面積 113.99m2
販売価格 5,499万円
< ローンシミュレーション >
建物面積 建物面積:107.29m2
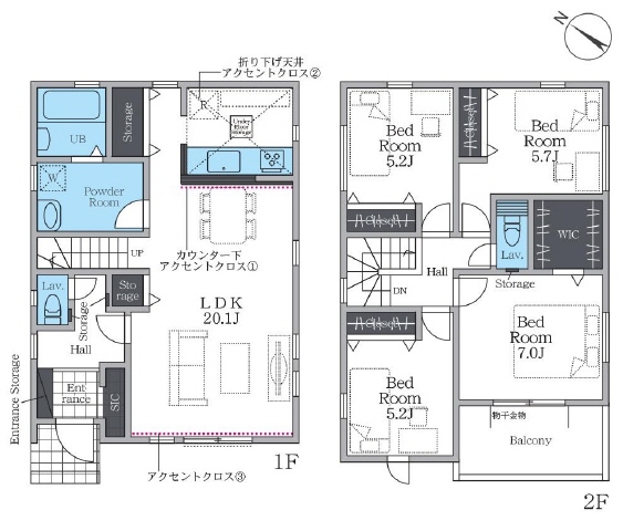
間取り 4LDK 完成予定 2026/04
  • W-CL
    W-CL
  • 2号棟
    2号棟
その他交通 京王相模原線/橋本 徒歩25分
販売戸数/総戸数 --戸/--戸
建物構造 木造 建ぺい率/容積率 60%/200%
最多価格帯 私道面積 (無)
敷地権利 所有権 国土法 -
地代/借地期間 -- 用途地域 市街化区域 準工業
権利金/保証金 -- 地目 宅地
その他費用 接道状況 南西側道路(公道/幅員12m)に7m接道
間取り詳細 洋室5.2・洋室5.2・洋室5.7・洋室7・LDK20.1 地勢 -
駐車場 付(2台) 建築確認番号 09679
引渡時期 予定:2026/04下旬 施工会社 --
周辺環境 (教育施設)向陽小学校 約750m、(教育施設)小山中学校 約600m、(その他)ひかわ動物病院 約400m
特記事項 20JLDK リビングイン階段です◆全室洋室仕様、CLパイプハンガー 網戸付 玄関ミラー付 リビング1部シャッターついてます◆ZEH省エネ適合基準住宅◆
設備・条件 電気、ガス(都市)、水道(公営)、食器洗浄乾燥機、浄水器、システムキッチン、対面キッチン、ガスキッチン、カウンターキッチン、ガスコンロ(付)、グリル、バス、トイレ、洗面台、バス・トイレ別、ユニットバス、追い炊き式、浴室換気乾燥機、洗面所独立、脱衣所、シャンプードレッサー、洗面台、暖房便座、室内洗濯機置場、排水(下水)、フローリング、収納、床下収納、クローゼット、ウォークインクローゼット、物入、下駄箱、TV付インターフォン、駐車台数、バリアフリー、手摺り付き
ピアノ可、ペット可、子供可
備考 採光向き:南西 info- ローソン 350m ライフ 650m 物件登録日・更新日 2026年02月22日
売主 次回更新予定日 2026年03月22日
お問い合わせ番号 小山4期-2
販売スケジュール --
取引態様 一般媒介
お問い合わせ
株式会社輪が家
神奈川県相模原市南区古淵2丁目4-2101
神奈川県知事免許(3)第27846号
TEL 042-707-7440
フリーダイヤル
FAX 042-707-7442
物件へのお問い合わせ
無料相談
最適な物件を探したい方は
新築一戸建てのプロ『戸建マイスター:松沢博』
に無料相談。
新築一戸建てのプロ マイスターに相談する

ページの先頭へ