物件詳細

新築一戸建て
小町通1丁目新築戸建て
神奈川県相模原市中央区小町通1丁目
新築一戸建て(新築(建築中))
交通 横浜線/相模原 徒歩20分 土地面積 70.08m2
販売価格 4,499万円
< ローンシミュレーション >
建物面積 建物面積:115.92m2
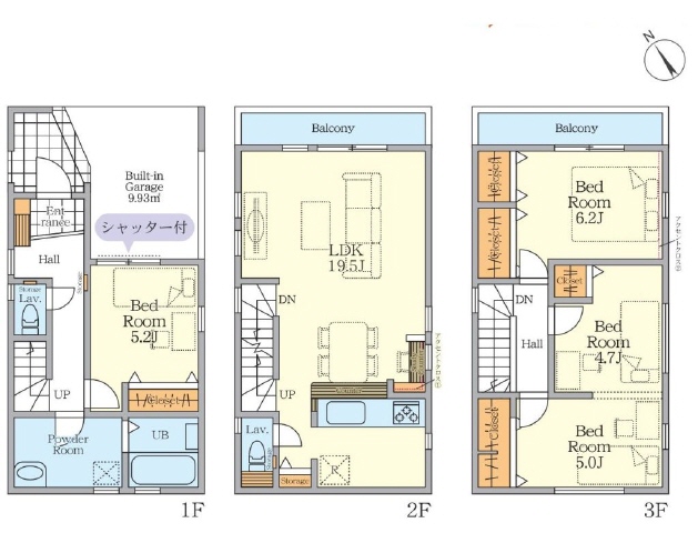
間取り 3LDK 完成予定 2026/04
  • Wバルコニー
    Wバルコニー
  • 1号棟
    1号棟
その他交通 - 販売戸数/総戸数 --戸/--戸
建物構造 木造 建ぺい率/容積率 70%/168%
最多価格帯 私道面積 (登記)130m2
持分: (1/40))
敷地権利 所有権 国土法 -
地代/借地期間 -- 用途地域 市街化区域 1種住居
権利金/保証金 -- 地目 宅地
その他費用 接道状況 北東側道路(私道/幅員4m)に5m接道
間取り詳細 洋室5.2・洋室6.2・洋室9.7・LDK19.5 地勢 平坦地
駐車場 付(1台) 建築確認番号 09120
引渡時期 予定:2026/04中旬 施工会社 --
周辺環境 (教育施設)横山小学校 約1,000m、(教育施設)清新中学校 約160m、(その他)さがみはらねこの病院 約350m
特記事項 19.5JLDK 2階リビングです。ビルトインガレージ 全室洋室、網戸付、1階1部シャッター付 1部アクセントクロス仕様です
設備・条件 電気、ガス(都市)、水道(公営)、食器洗浄乾燥機、浄水器、システムキッチン、対面キッチン、ガスキッチン、カウンターキッチン、ガスコンロ(付)、グリル、バス、トイレ、洗面台、バス・トイレ別、ユニットバス、追い炊き式、浴室換気乾燥機、洗面所独立、脱衣所、シャンプードレッサー、洗面台、暖房便座、室内洗濯機置場、排水(下水)、フローリング、収納、床下収納、クローゼット、物入、下駄箱、TV付インターフォン、駐車台数、バリアフリー、手摺り付き
ピアノ可、ペット可、子供可
備考 採光向き:北東 info-ローソン 300m ビッグエー 270m ウエルシア 70m 物件登録日・更新日 2026年02月22日
売主 次回更新予定日 2026年03月22日
お問い合わせ番号 小町通1期-1
販売スケジュール --
取引態様 一般媒介
お問い合わせ
株式会社輪が家
神奈川県相模原市南区古淵2丁目4-2101
神奈川県知事免許(3)第27846号
TEL 042-707-7440
フリーダイヤル
FAX 042-707-7442
物件へのお問い合わせ
無料相談
最適な物件を探したい方は
新築一戸建てのプロ『戸建マイスター:松沢博』
に無料相談。
新築一戸建てのプロ マイスターに相談する

ページの先頭へ