物件詳細

新築一戸建て
町屋4丁目新築戸建て 1
神奈川県相模原市緑区町屋4丁目
新築一戸建て(新築(建築中))
交通 京王相模原線/橋本 バス11分 原宿 停歩9分 土地面積 127.61m2
販売価格 3,880万円
< ローンシミュレーション >
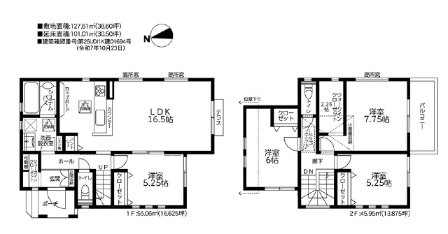
建物面積 建物面積:100.01m2
間取り 4LDK 完成予定 2026/06

  • 外壁イメージパース 風景 車等は含まれません
    外壁イメージパース 風景 車等は含まれません
  • 制震ダンパー付
  • ZEH水準適合住宅 高断熱+省エネ住宅 ソーラー無しです
その他交通 横浜線/橋本 バス11分 原宿 停歩9分
相模線/橋本 バス11分 原宿 停歩9分
販売戸数/総戸数 --戸/--戸
建物構造 木造 建ぺい率/容積率 60%/80%
最多価格帯 私道面積 (無)
敷地権利 所有権 国土法 -
地代/借地期間 -- 用途地域 市街化区域 1種低層
権利金/保証金 -- 地目 宅地
その他費用 接道状況 西側道路(公道/幅員5m)に9m接道、北側道路(公道/幅員5m)に3m接道
間取り詳細 洋室5.2・洋室5.2・洋室6・洋室7・LDK16.5 地勢 -
駐車場 付(2台) 建築確認番号 01694
引渡時期 予定:2026/06下旬 施工会社 --
周辺環境 (教育施設)広田小学校 約800m、(教育施設)相模丘中学校 約800m、(その他)ほさか動物病院 約1,600m
特記事項 16.5JLDK リビングイン階段ではありません◆制震ダンパー付住宅◆網戸付 浴室TV 屋根裏収納付◆S-ICL W-CLなど収納豊富
設備・条件 ガス(都市)、水道(公営)、給湯、食器洗浄乾燥機、浄水器、システムキッチン、対面キッチン、ガスキッチン、カウンターキッチン、ガスコンロ(付)、グリル、バス、トイレ、洗面台、バス・トイレ別、ユニットバス、追い炊き式、浴室換気乾燥機、洗面所独立、脱衣所、シャンプードレッサー、洗面台、暖房便座、室内洗濯機置場、排水(下水)、フローリング、収納、床下収納、屋根裏収納、クローゼット、ウォークインクローゼット、物入、下駄箱、TV付インターフォン、カードキーシステム、駐車台数、バリアフリー、手摺り付き
ピアノ可、ペット可、子供可
備考 採光向き:南 Info-セブンイレブン 1500m スーパーアルプス 550m●ご内見時の敷地内停車ご遠慮ください 物件登録日・更新日 2025年11月24日
売主 次回更新予定日 2025年12月08日
お問い合わせ番号 町屋4丁目5期-1
販売スケジュール --
取引態様 仲介
お問い合わせ
株式会社輪が家
神奈川県相模原市南区古淵2丁目4-2101
神奈川県知事免許(3)第27846号
TEL 042-707-7440
フリーダイヤル
FAX 042-707-7442
物件へのお問い合わせ
無料相談
最適な物件を探したい方は
新築一戸建てのプロ『戸建マイスター:松沢博』
に無料相談。
新築一戸建てのプロ マイスターに相談する

ページの先頭へ