物件詳細

新築一戸建て
古淵1丁目新築戸建て 2
神奈川県相模原市南区古淵1丁目
新築一戸建て(新築)
交通 横浜線/古淵 徒歩9分 土地面積 60.47m2
販売価格 4,790万円
< ローンシミュレーション >
建物面積 建物面積:111.78m2
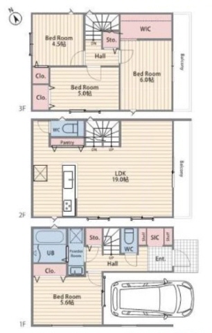
間取り 4LDK 完成予定 2025/10
  • 建物全体浄水器 フィルター交換別途費用掛かります/年
    建物全体浄水器 フィルター交換別途費用掛かります/年
  • 外観パース 風景 車等は含まれません
    外観パース 風景 車等は含まれません
  • 2号棟
その他交通 - 販売戸数/総戸数 --戸/--戸
建物構造 木造 建ぺい率/容積率 60%/200%
最多価格帯 私道面積 (無)
敷地権利 所有権 国土法 -
地代/借地期間 -- 用途地域 市街化区域 1種中高層
権利金/保証金 -- 地目 宅地
その他費用 接道状況 南東側道路(公道/幅員4m)に6m接道
間取り詳細 洋室4.5・洋室5・洋室5.6・洋室6・LDK19 地勢 -
駐車場 付(1台) 建築確認番号 00143
引渡時期 施工会社 --
周辺環境 (教育施設)大野小学校 約1,100m、(教育施設)鵜野森中学校 約2,000m、(その他)ペテモどうぶつ医療センター 約850m
特記事項 LDK19J 2階リビングです。S-ICL、W-CL、タカラのキッチン、洗面、浴室ですよ。ミラブル採用
設備・条件 電気、ガス(都市)、水道(公営)、給湯、浄水器、システムキッチン、対面キッチン、ガスキッチン、カウンターキッチン、ガスコンロ(付)、グリル、バス、トイレ(2箇所)、洗面台、バス・トイレ別、ユニットバス、追い炊き式、浴室換気乾燥機、洗面所独立、脱衣所、シャンプードレッサー、洗面台、暖房便座、室内洗濯機置場、排水(下水)、フローリング、収納、クローゼット、ウォークインクローゼット、物入、下駄箱、TV付インターフォン、駐車台数、バリアフリー、手摺り付き
ペット可、子供可
備考 採光向き:南東 Info-セブンイレブン 120m イトーヨーカドー 900m●駐車場は車種によります●16号越えない人気のエリア。 物件登録日・更新日 2025年10月14日
売主 次回更新予定日 2025年10月28日
お問い合わせ番号 古淵1丁目1期-2
販売スケジュール --
取引態様 仲介
お問い合わせ
株式会社輪が家
神奈川県相模原市南区古淵2丁目4-2101
神奈川県知事免許(3)第27846号
TEL 042-707-7440
フリーダイヤル
FAX 042-707-7442
物件へのお問い合わせ
無料相談
最適な物件を探したい方は
新築一戸建てのプロ『戸建マイスター:松沢博』
に無料相談。
新築一戸建てのプロ マイスターに相談する

ページの先頭へ