物件詳細

新築一戸建て
南橋本1丁目新築戸建て
神奈川県相模原市中央区南橋本1丁目
新築一戸建て(新築(建築中))
交通 相模線/南橋本 徒歩5分 土地面積 75.61m2
販売価格 5,299万円
< ローンシミュレーション >
建物面積 建物面積:84.25m2
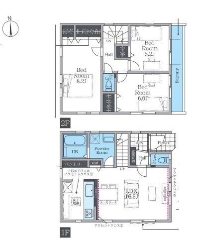
間取り 3LDK 完成予定 2025/12
  • ZEH水準適合住宅
    ZEH水準適合住宅
  • 外観パース 近隣風景や自動車等は含まれません
    外観パース 近隣風景や自動車等は含まれません
  • 1号棟
その他交通 京王相模原線/橋本 徒歩24分
販売戸数/総戸数 --戸/--戸
建物構造 木造 建ぺい率/容積率 70%/200%
最多価格帯 私道面積 (無)
敷地権利 所有権 国土法 -
地代/借地期間 -- 用途地域 市街化区域 2種住居
権利金/保証金 -- 地目 宅地
その他費用 接道状況 東側道路(公道/幅員6m)に6m接道、南側道路(公道/幅員4m)に9m接道
間取り詳細 洋室5.2・洋室6・洋室8.2・LDK16.5 地勢 -
駐車場 付(1台) 建築確認番号 04586
引渡時期 予定:2025/12下旬 施工会社 --
周辺環境 (教育施設)小山小学校 約500m、(教育施設)小山中学校 約600m、(その他)DCC動物病院 相模原 約1,100m
特記事項 16.5JLDK リビングイン階段です◆全室洋室仕様、玄関ミラー 網戸 1部シャッター ついてます。◆ZEH省エネ適合基準住宅◆
設備・条件 電気、ガス(都市)、水道(公営)、食器洗浄乾燥機、浄水器、システムキッチン、対面キッチン、ガスキッチン、カウンターキッチン、ガスコンロ(付)、グリル、バス、トイレ、洗面台、バス・トイレ別、ユニットバス、追い炊き式、浴室換気乾燥機、洗面所独立、脱衣所、シャンプードレッサー、洗面台、暖房便座、室内洗濯機置場、排水(下水)、フローリング、収納、床下収納、クローゼット、物入、下駄箱、TV付インターフォン、駐車台数、バリアフリー、手摺り付き
ピアノ可、ペット可、子供可
備考 採光向き:南西 info- セブンイレブン 300m コーナン スーパーライフ300m 物件登録日・更新日 2025年12月01日
売主 次回更新予定日 2025年12月29日
お問い合わせ番号 南橋本1-1
販売スケジュール --
取引態様 一般媒介
お問い合わせ
株式会社輪が家
神奈川県相模原市南区古淵2丁目4-2101
神奈川県知事免許(3)第27846号
TEL 042-707-7440
フリーダイヤル
FAX 042-707-7442
物件へのお問い合わせ
無料相談
最適な物件を探したい方は
新築一戸建てのプロ『戸建マイスター:松沢博』
に無料相談。
新築一戸建てのプロ マイスターに相談する

ページの先頭へ