物件詳細

新築一戸建て
大蔵町新築戸建 3
東京都町田市大蔵町
新築一戸建て(新築(建築中))
交通 小田急線/鶴川 バス10分 井の花 停歩6分 土地面積 127.29m2
販売価格 4,899万円
< ローンシミュレーション >
建物面積 建物面積:101.76m2
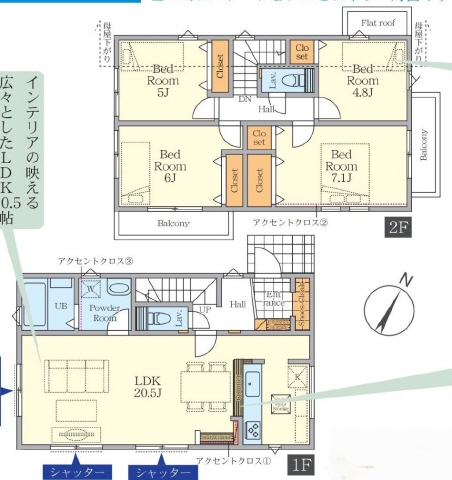
間取り 4LDK 完成予定 2025/12
  • 3号棟1部アクセントクロス仕様、2面バルコニー キッチンクリナップ、洗面リクシル、浴室ハウステック
    3号棟1部アクセントクロス仕様、2面バルコニー キッチンクリナップ、洗面リクシル、浴室ハウステック
  • 外観パース 風景 車等は含まれません
    外観パース 風景 車等は含まれません
  • 3号棟 1部協定地有り、ZEH水準省エネ基準適合住宅 高断熱住宅 ソーラー無しです
その他交通 京王相模原線/若葉台 バス11分 街道口 停歩4分
販売戸数/総戸数 --戸/--戸
建物構造 木造 建ぺい率/容積率 40%/80%
最多価格帯 私道面積 (無)
敷地権利 所有権 国土法 -
地代/借地期間 -- 用途地域 市街化区域 1種低層
権利金/保証金 -- 地目 宅地
その他費用 接道状況 北東側道路(公道/幅員5m)に6m接道
間取り詳細 洋室4.8・洋室5・洋室6・洋室7.1・LDK20.5 地勢 -
駐車場 付(2台) 建築確認番号 02376
引渡時期 予定:2025/12下旬 施工会社 --
周辺環境 (教育施設)大蔵小学校 約1,400m、(教育施設)鶴川中学校 約900m、(その他)ダクタリ動物病院 約2,100m
特記事項 20.5JLDK リビングイン階段ではありません◆食洗器付、網戸付、1部シャッター雨戸 S-ICL 玄関ミラー付、CLパイプ付です。◆
設備・条件 電気、ガス(都市)、水道(公営)、食器洗浄乾燥機、浄水器、システムキッチン、対面キッチン、カウンターキッチン、ガスコンロ(付)、グリル、バス、トイレ、洗面台、バス・トイレ別、ユニットバス、追い炊き式、浴室換気乾燥機、洗面所独立、脱衣所、シャンプードレッサー、洗面台、暖房便座、室内洗濯機置場、排水(下水)、フローリング、収納、床下収納、クローゼット、物入、下駄箱、TV付インターフォン、駐車台数、バリアフリー、手摺り付き
ピアノ可、ペット可、子供可
備考 採光向き:南東 info-ミニストップ 500m スーパーマルエツ 1000m◆資源ゴミ置場ありますが、他ゴミは町田市は戸別収集 物件登録日・更新日 2025年12月01日
売主 次回更新予定日 2025年12月29日
お問い合わせ番号 大蔵町4期-3
販売スケジュール --
取引態様 一般媒介
お問い合わせ
株式会社輪が家
神奈川県相模原市南区古淵2丁目4-2101
神奈川県知事免許(3)第27846号
TEL 042-707-7440
フリーダイヤル
FAX 042-707-7442
物件へのお問い合わせ
無料相談
最適な物件を探したい方は
新築一戸建てのプロ『戸建マイスター:松沢博』
に無料相談。
新築一戸建てのプロ マイスターに相談する

ページの先頭へ