物件詳細

新築一戸建て
光が丘2丁目新築戸建て 2
神奈川県相模原市中央区光が丘2丁目
新築一戸建て(新築(建築中))
交通 横浜線/淵野辺 バス9分 光が丘 停歩2分 土地面積 98.96m2
販売価格 4,499万円
< ローンシミュレーション >
建物面積 建物面積:98.88m2
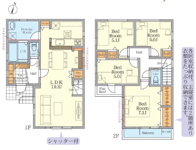
間取り 4LDK 完成予定 2025/11
  • ZEH水準適合住宅
    ZEH水準適合住宅
  • 外観パース 風景 車等は含まれません
    外観パース 風景 車等は含まれません
  • 2号棟
その他交通 - 販売戸数/総戸数 --戸/--戸
建物構造 木造 建ぺい率/容積率 50%/100%
最多価格帯 私道面積 (無)
敷地権利 所有権 国土法 -
地代/借地期間 -- 用途地域 市街化区域 1種低層
権利金/保証金 -- 地目 宅地
その他費用 接道状況 南東側道路(公道/幅員6m)に6m接道
間取り詳細 洋室5・洋室5・洋室5.1・洋室7.1・LDK19.3 地勢 平坦地
駐車場 付(2台) 建築確認番号 02905
引渡時期 予定:2025/11下旬 施工会社 --
周辺環境 (教育施設)並木小学校 約210m、(教育施設)弥栄中学校 約850m、(その他)しぶや動物病院 約1,000m
特記事項 19JLDKリビングイン階段です。全室洋室仕様 食洗器付、網戸付、1部シャッター付 1部アクセントクロス仕様 ワイドバルコニーです。
設備・条件 電気、ガス(都市)、水道(公営)、食器洗浄乾燥機、浄水器、システムキッチン、対面キッチン、ガスキッチン、カウンターキッチン、ガスコンロ(付)、グリル、バス、トイレ、洗面台、バス・トイレ別、ユニットバス、追い炊き式、浴室換気乾燥機、洗面所独立、脱衣所、シャンプードレッサー、洗面台、暖房便座、室内洗濯機置場、排水(下水)、フローリング、収納、クローゼット、物入、下駄箱、TV付インターフォン、駐車台数、手摺り付き
ピアノ可、ペット可、子供可
備考 採光向き:南東 info-ヤオコー 350m セブンイレブン 450m●駐車場は車種によります●キッチン クリナップ 洗面台 リクシル 浴室ハウステック● 物件登録日・更新日 2025年10月13日
売主 次回更新予定日 2025年11月10日
お問い合わせ番号 光が丘2期-02
販売スケジュール --
取引態様 一般媒介
お問い合わせ
株式会社輪が家
神奈川県相模原市南区古淵2丁目4-2101
神奈川県知事免許(3)第27846号
TEL 042-707-7440
フリーダイヤル
FAX 042-707-7442
物件へのお問い合わせ
無料相談
最適な物件を探したい方は
新築一戸建てのプロ『戸建マイスター:松沢博』
に無料相談。
新築一戸建てのプロ マイスターに相談する

ページの先頭へ